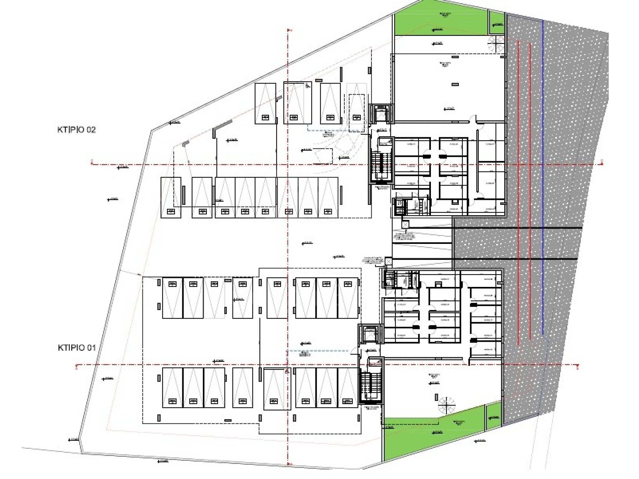
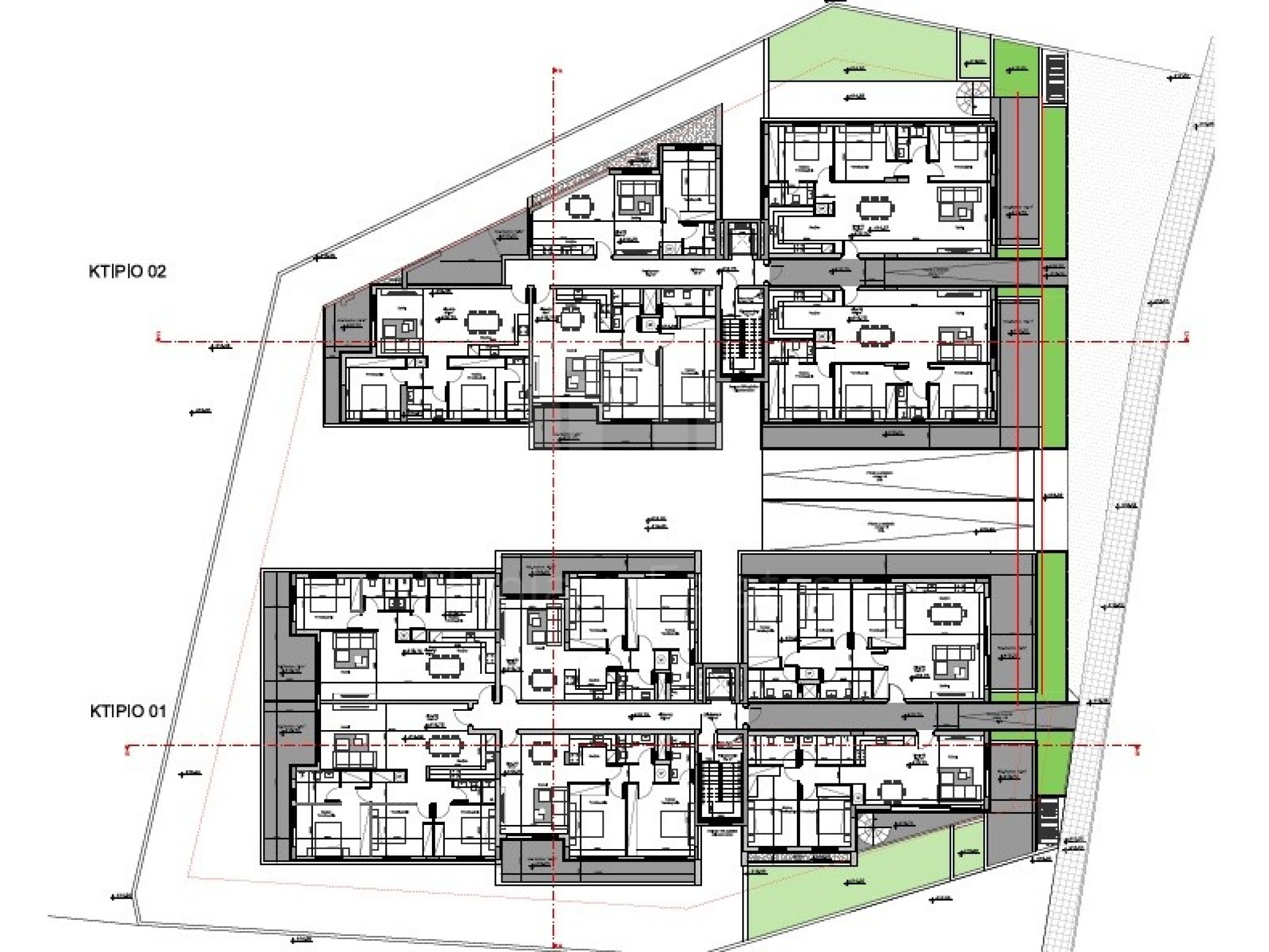
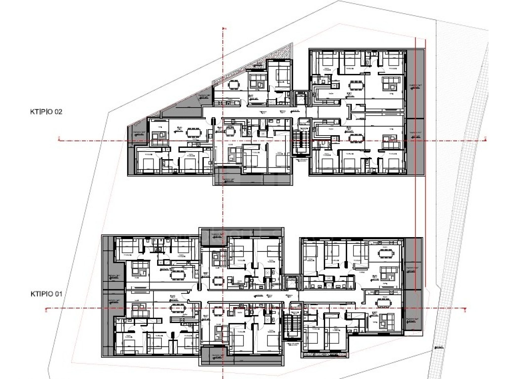
Brand new three bedroom apartment in Lythrodontas village of Nicosia
For Sale / EUR 182.000 (VAT not included)
357 70007700
or
Φωλιασμένο στο ήσυχο χωριό Λυθροδόντας, σε μικρή απόσταση με το αυτοκίνητο από τη Λευκωσία, αυτό το γοητευτικό διαμέρισμα προσφέρει την τέλεια ισορροπία μεταξύ ηρεμίας στην εξοχή και άνεσης στην πόλη. Περιτριγυρισμένο από φυσική ομορφιά και παραδοσιακό κυπριακό χαρακτήρα, το ακίνητο προσφέρει μια χαλαρωτική απόδραση από τον έντονο ρυθμό της αστικής ζωής.
ΧΑΡΑΚΤΗΡΙΣΤΙΚΑ
Ενιαία διαρρύθμιση καθιστικού και τραπεζαρίας
Ευρύχωρα υπνοδωμάτια με εντοιχισμένες ντουλάπες
Ιδιωτικό μπαλκόνι με γαλήνια θέα στο χωριό
Ηλιακό σύστημα θέρμανσης νερού
Στεγασμένος χώρος στάθμευσης
Αποθήκη
Ήσυχη οικιστική γειτονιά
Εύκολη πρόσβαση στο κέντρο της Λευκωσίας
Κοντά σε τοπικές ανέσεις, όπως καταστήματα, καφετέριες και παραδοσιακές ταβέρνες.
Nestled in the peaceful village of Lythrodontas, just a short drive from Nicosia, this charming apartment offers the perfect balance between countryside tranquility and city convenience. Surrounded by natural beauty and traditional Cypriot character, the property provides a relaxing escape from the busy pace of urban life.
FEATURES
Open-plan living and dining area
Spacious bedrooms with fitted wardrobes
Private balcony with peaceful village views
Solar water heating system
Covered parking space
Storage room
Quiet residential neighborhood
Easy access to Nicosia city center
Close to local amenities including shops, cafes, and traditional taverns.












