Brand New Two Bedroom Apartments with Photovoltaics for Sale in Aglantzia, Nicosia
For Sale / EUR 222.000 (VAT not included)
357 70007700
or
Μοντέρνα, υπό κατασκευή διαμερίσματα 2 υπνοδωματίων προς πώληση στο κέντρο της Αγλαντζιάς, απέναντι από πάρκο.
Η εξαιρετική τοποθεσία του έργου, προσφέρει εύκολη πρόσβαση και διέξοδο προς όλες τις κατευθύνσεις καθώς βρίσκεται μεταξύ κύριων οδικών αρτηριών της περιοχής και είναι πολύ κοντά στο Πανεπιστήμιο Κύπρου.
Τα διαμερίσματα θα είναι πλήρως ανεξάρτητα μεταξύ τους με μεγάλα μπαλκόνια, καλυμμένους χώρους στάθμευσης και αποθήκες.
Χαρακτηριστικά:
Ενεργειακή Απόδοση Α
Εγκατάσταση Φωτοβολταικών 2 KWh.
Υψηλών προδιαγραφών κεραμικά και είδη Υγιεινής.
Τοποθέτηση Τεχνογρανίτη στο καπάκι κουζίνας.
Τρισδιάστατη Σχεδίαση σύμφωνα με τις ανάγκες του πελάτη όλα τα ξυλουργικά.
Εγκατάσταση κλιματιστικών.
Θερμομονωτικά αλουμίνια με διπλό γυαλί.
Εγκατάσταση πιεστικού, ηλιακών και θερμολουτήρα.
Κάγκελο από γυαλί στα μπαλκόνια.
Ανιχνευτής κίνησης στους κοινόχρηστους χώρους εσωτερικά και εξωτερικά του κτιρίου.
Θυροτηλεόραση σε όλα τα διαμερίσματα και είσοδος με κάρτα και κωδικό.
Εγκατάσταση εξωτερικών ηλεκτρικών σκιάστρων (Shutters) στα υπνοδωμάτια.
Έξυπνος διακόπτης θερμολουτήρα με ενεργοποίηση μέσω WIFI.
Πυράντοχες εξώπορτες.
Δάπεδα πορείας ΑΜΕΑ.
Έλεγχος της εξώπορτας μέσω εφαρμογής από το τηλέφωνο.
Εγκατάσταση Συναγερμού.
Δωρεάν Συντήρηση ανελκυστήρα για 6 μήνες.
Διαθεσιμότητα:
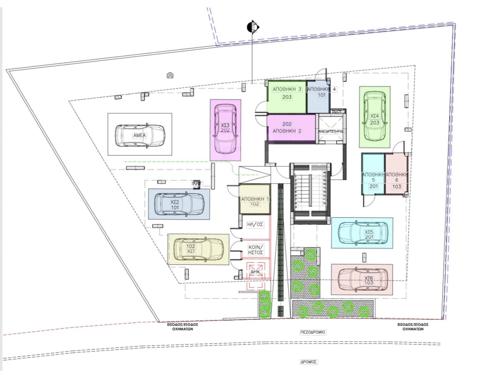
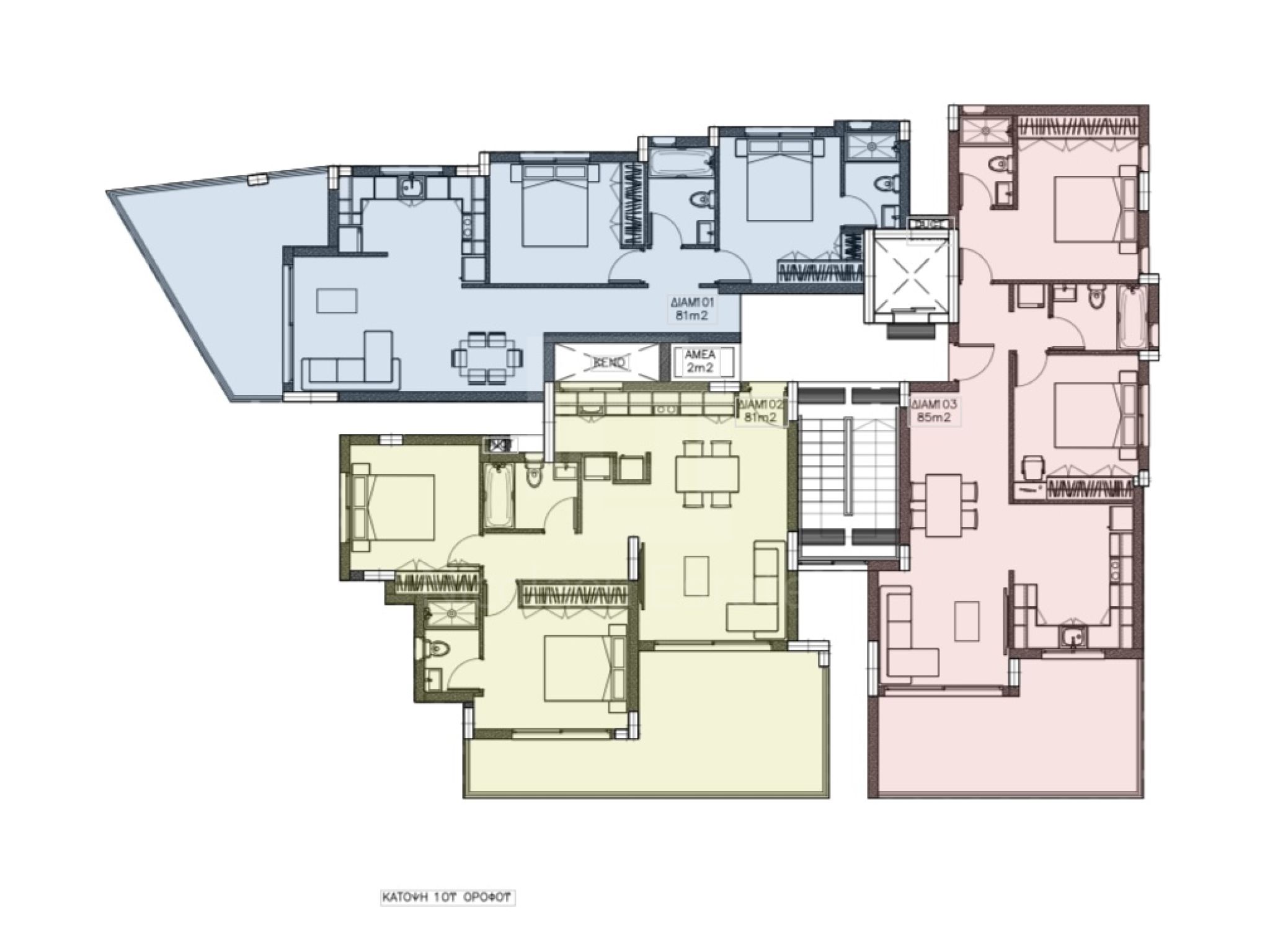
Διαμέρισμα 101 (222.000 συν ΦΠΑ): 81τμ εσωτερικός χώρος, 20τμ καλυμμένη βεράντα, εγκατάσταση φωτοβολταϊκών 2 KWh, 2 υπνοδωμάτια, 2 μπάνια, καλυμμένος χώρος στάθμευσης και αποθήκη.
Διαμέρισμα 102 (227.000 συν ΦΠΑ): 81τμ εσωτερικός χώρος, 23τμ καλυμμένη βεράντα, εγκατάσταση φωτοβολταϊκών 2 KWh, 2 υπνοδωμάτια, 2 μπάνια, καλυμμένος χώρος στάθμευσης και αποθήκη.
Διαμέρισμα 103 (232.000 συν ΦΠΑ): 85τμ εσωτερικός χώρος, 21τμ καλυμμένη βεράντα, εγκατάσταση φωτοβολταϊκών 2 KWh, 2 υπνοδωμάτια, 2 μπάνια, καλυμμένος χώρος στάθμευσης και αποθήκη.
------------
Modern, under construction 2 bedroom apartments for sale in the center of Aglantzia, opposite a park.
The excellent location of the project offers easy access and exit in all directions as it is located between the main roads of the area. It is very close to the University of Cyprus.
The apartments will be completely independent from each other with large balconies, covered parking spaces and storage rooms.
Features:
Energy Efficiency A
Installation of 2 KWh Photovoltaics.
High-quality ceramics and sanitary ware.
Installation of Technogranite on the kitchen top.
Three-dimensional Design according to the customer's needs, all carpentry.
Installation of air conditioners.
Thermally insulated aluminum with double glass.
Installation of pressure, solar and hot water heater.
Glass railing on the balconies.
Motion detector in the common areas inside and outside the building.
Video door entry in all apartments and entry with card and code.
Installation of external electric blinds (Shutters) in the bedrooms.
Smart water heater switch with activation via WIFI.
Fireproof exterior doors.
Disabled access floors.
Control of the exterior door via application from the phone.
Alarm Installation.
Free Elevator Maintenance for 6 months.
Availability:
Apartment 101 (222,000 plus VAT): 81sqm interior space, 20sqm covered veranda, 2 KWh photovoltaic installation, 2 bedrooms, 2 bathrooms, covered parking space and storage room.
Apartment 102 (227,000 plus VAT): 81sqm interior space, 23sqm covered veranda, 2 KWh photovoltaic installation, 2 bedrooms, 2 bathrooms, covered parking space and storage room.
Apartment 103 (232,000 plus VAT): 85sqm interior space, 21sqm covered veranda, 2 KWh photovoltaic installation, 2 bedrooms, 2 bathrooms, covered parking space and storage room.
















