Resale fully renovated 3 bedroom house (under renovation) in Panthea, Limassol
For Sale / EUR 990.000
357 70007700
or
Property Description
Detached 3 bedroom house currently under full renovation with completion projected for February 2027. Since this is a resale there's NO VAT to be paid. The location of the house could not be better being at a walking distance to schools, supermarkets, a bakery, convenience store and very easy & quick access to the highway
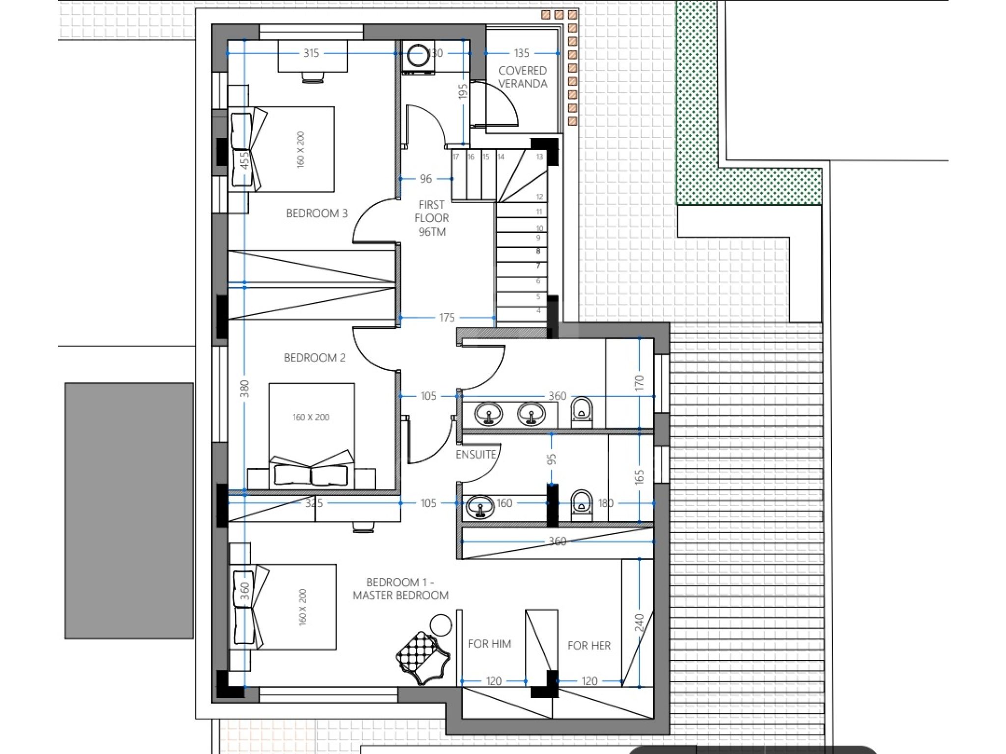
The internal covered area of the house over 2 floors is 200sq.m and the plot is 361sq.m. The ground floor (88sq.m) is open plan design which features a beautiful island in the kitchen area, dining & living areas, a guest w.c and patio doors leading out to the covered car port and the private swimming pool (optional at extra cost)
The upper floor (111.5sq.m) features 3 very good size bedrooms with the master bedroom benefiting from walk-in wardrobes for him & her as well as en-suite bathroom. There's also the family bathroom, a laundry room which is conveniently positioned next to a covered veranda
• Covered Area 200m2
• Plot Area 361m2
• Bedrooms 3 (Master en-suite)
• Energy Efficiency Certificate A'
• Uncovered veranda 95m2
• Covered veranda 21m2
• Bathrooms 3
• Air Condition : Provision
• Private Swimming Pool overflow 6.5m x 3.5m (Optional)
• Levels 2
• Distance to city 4km
• Distance to sea 5km
• Close proximity to highway
• Storage room
• Guest toilet
• Double glazed windows
• Mountain view
• Quiet location
• Covered garage
• Provision for electrical shutters only in bedrooms
• Nearby Amenities
• Public Schools
• Private Schools
• Parks & Playground
• Super Markets, Shops & Services
• Covered Veranda: 21 m2
• BBQ Area: 7 m2
• Uncovered Veranda: 95 m2
• Title Deed available
FULL RENOVATION & INSULATION








