New two bedroom apartment with private yard in Tseri area, Nicosia
For Sale / EUR 195.000 (VAT not included)
357 70007700
or
Το έργο βρίσκεται σε έναν προνομιακό, αλλά ήσυχο αλλά πολύ κεντρικό δρόμο στην περιοχή Τσέρι.
Πολύ κοντά στο Δημοτικό Σχολείο, τράπεζες, φούρνους και καταστήματα. Με εύκολη πρόσβαση στο κέντρο της πόλης και στον αυτοκινητόδρομο Λευκωσίας - Λεμεσού.
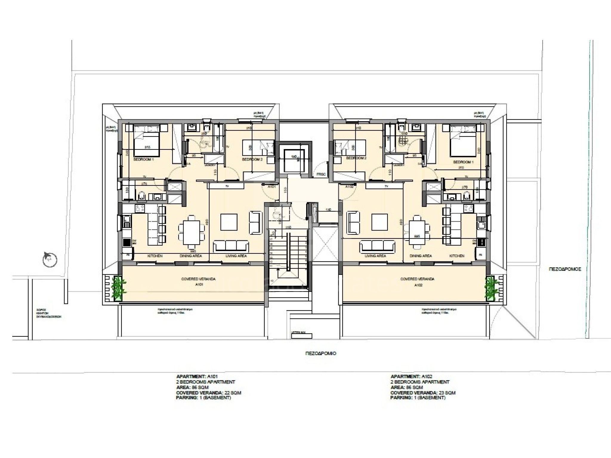
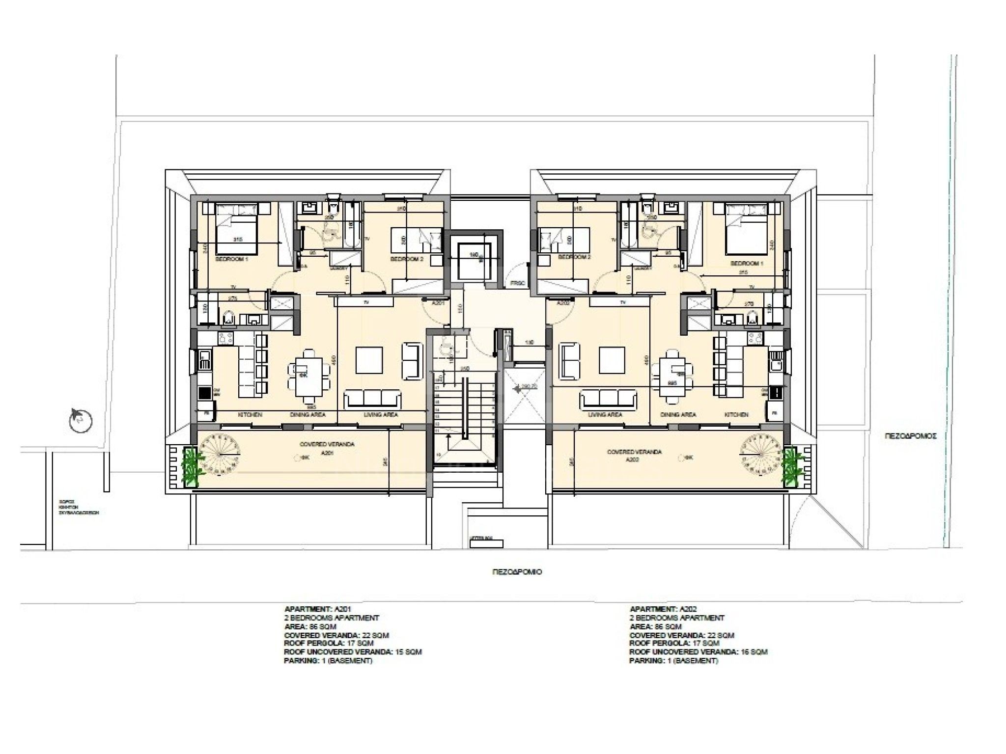
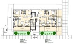
Το έργο αποτελείται από 6 ανεξάρτητα διαμερίσματα δύο υπνοδωματίων.
Συγκεκριμένα, 2 διαμερίσματα στο ισόγειο με ιδιωτική αυλή, 2 διαμερίσματα στον 1ο όροφο και 2 διαμερίσματα στον 2ο όροφο με roof garden.
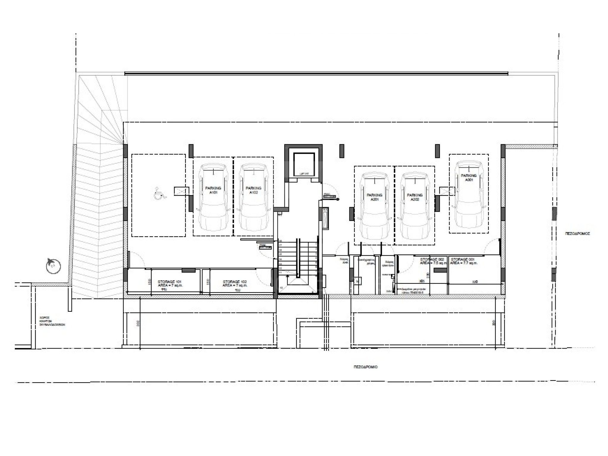
Όλα τα διαμερίσματα έχουν δικό τους χώρο στάθμευσης και αποθήκη.
Μεγάλες σκεπαστές βεράντες.
Θερμομονωμένα κουφώματα αλουμινίου.
Τοποθέτηση γρανίτη σε πάγκους κουζίνας.
Το κτίριο θα είναι ενεργειακής κλάσης Α
The project is located in a privileged, yet quiet but very central street in Tseri area.
Very close to the Primary School, banks, bakeries and shops. With easy access to the city center and the Nicosia - Limassol highway.
The project consists of 6 independent two-bedroom apartments.
Specifically, 2 apartments on the ground floor with a private courtyard, 2 apartments on the 1st floor and 2 apartments on the 2nd floor with a roof garden.
All apartments have their own parking space and storage room.
Large covered verandas.
Thermally insulated aluminum frames.
Installation of granite in kitchen countertops.
The building will be of energy class A








