New one bedroom apartment in Strovolos near Costas Theodorou lights
For Sale / EUR 170.000 (VAT not included)
357 70007700
or
Το έργο κατασκευάζεται σε προνομιακό οικόπεδο στο Δήμο Στροβόλου. Η περιοχή θεωρείται προνομιακή με εύκολη πρόσβαση στο κέντρο ή εκτός Λευκωσίας.
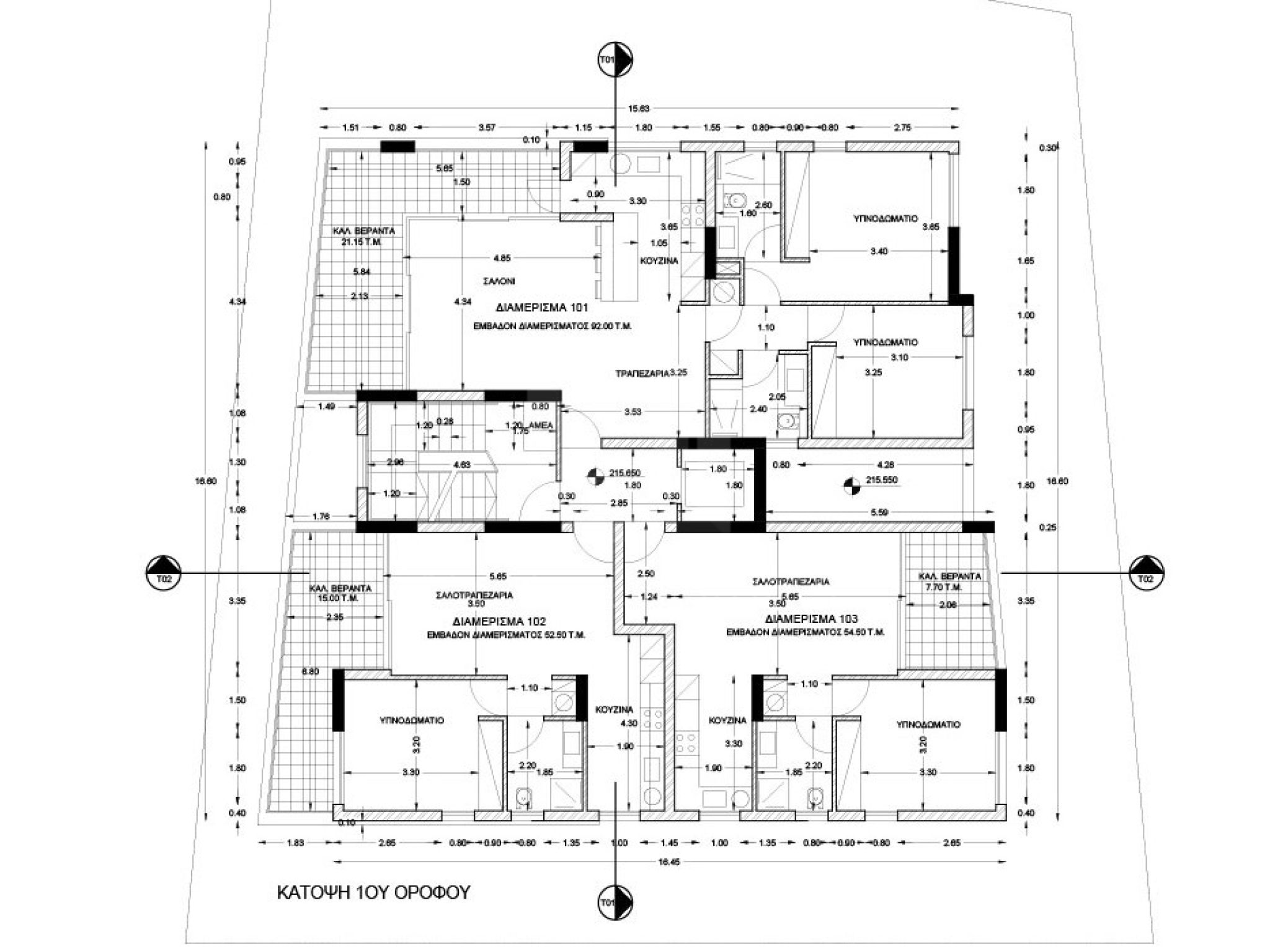
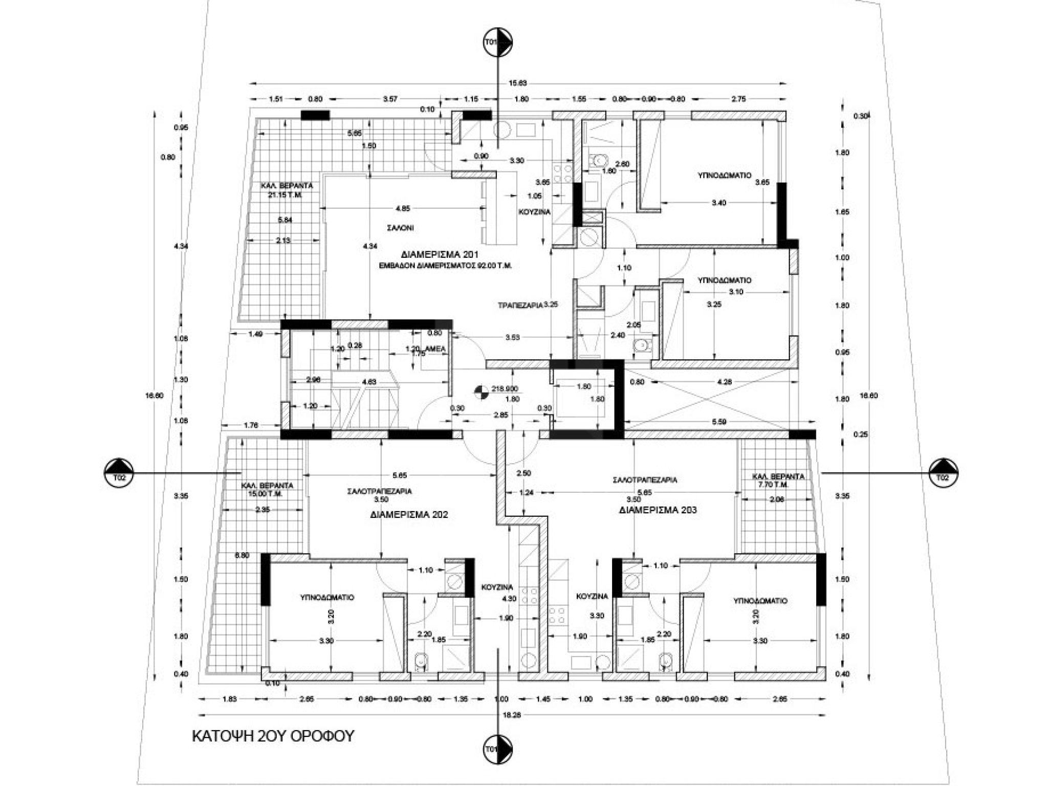
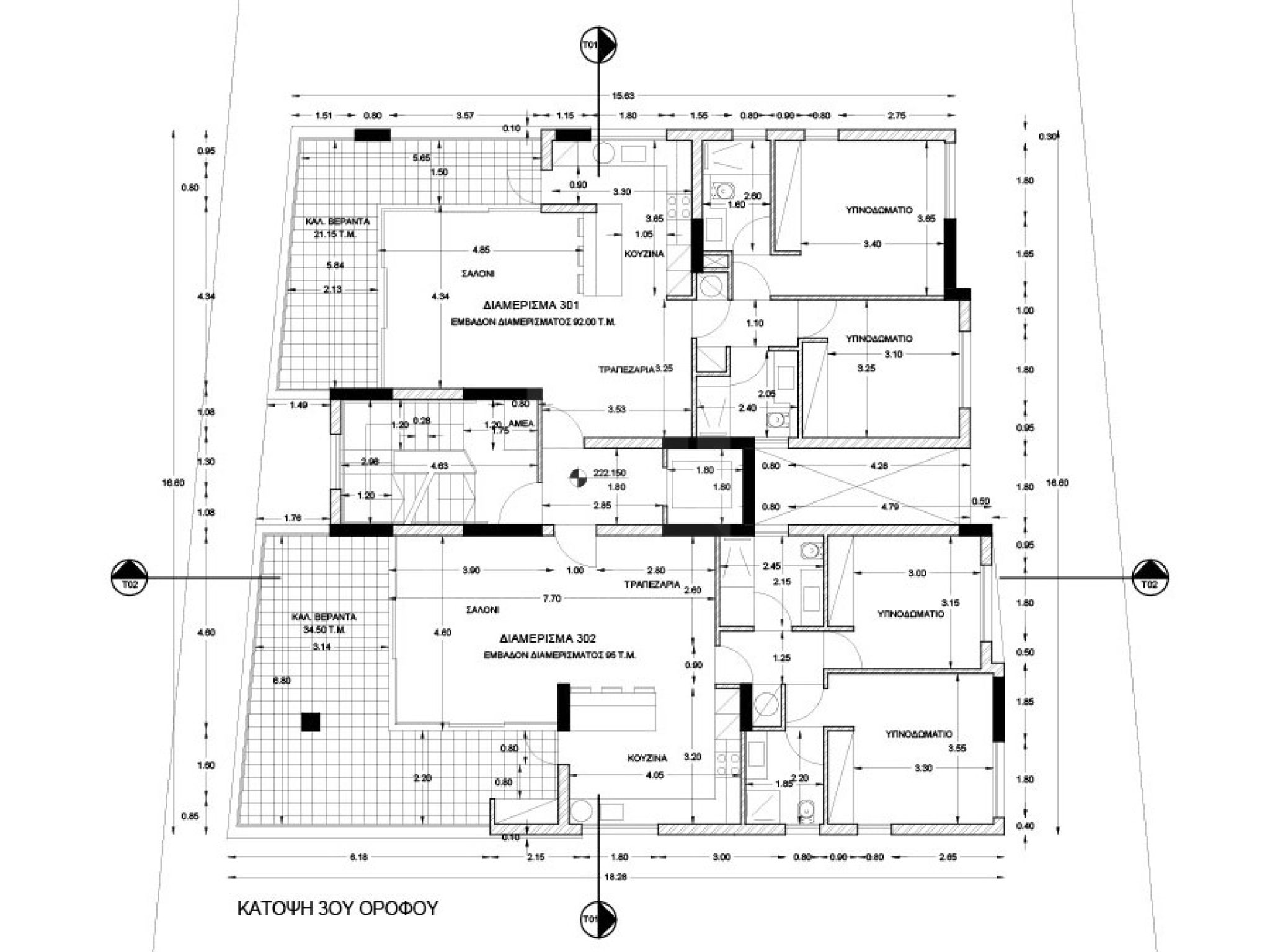
Το τριώροφο κτίριο αποτελείται από οκτώ (8) διαμερίσματα. Τέσσερα (4) από ένα (1) υπνοδωμάτιο και τέσσερα (4) από δύο (2) υπνοδωμάτια.
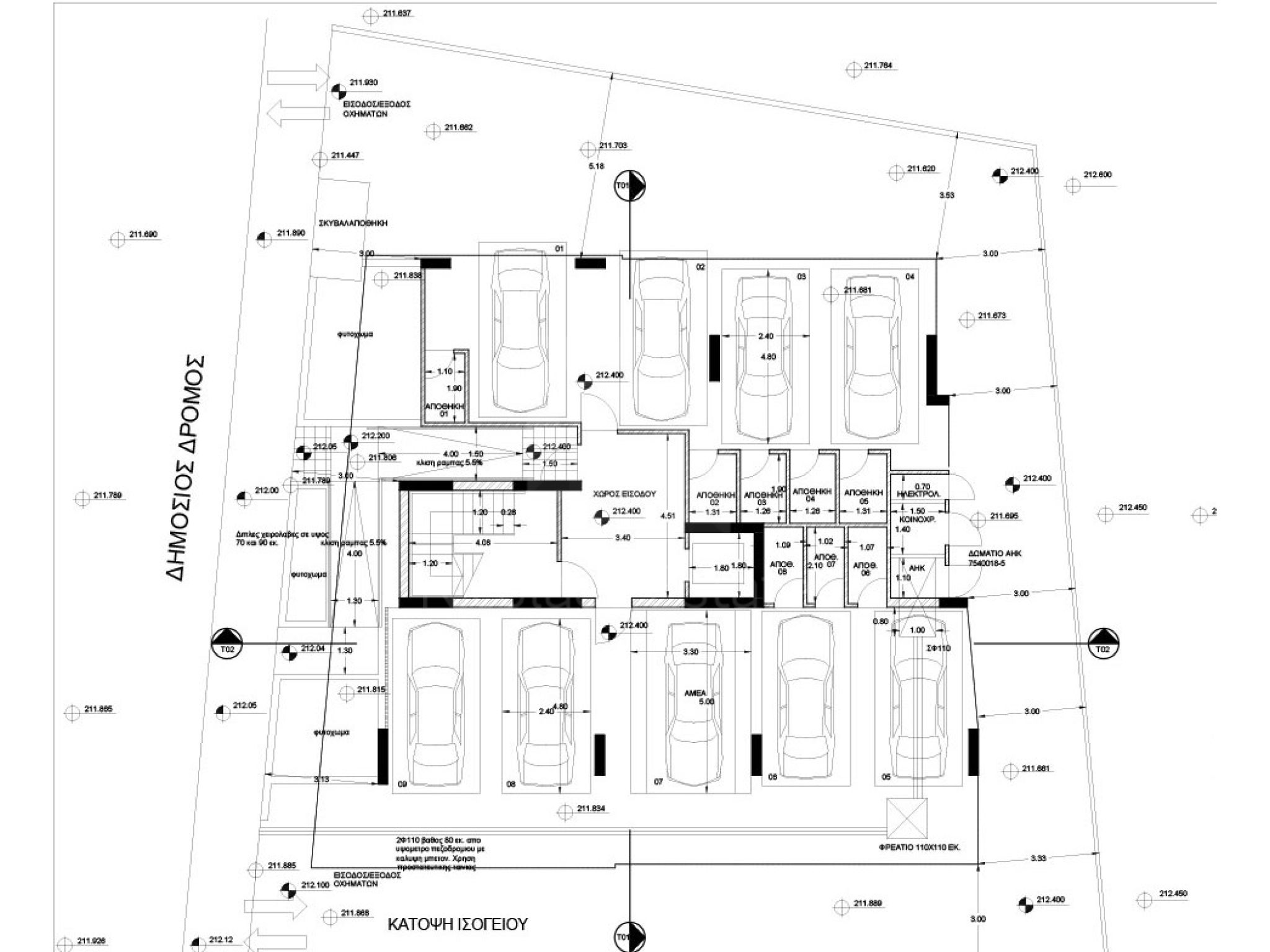
Στο υπόστεγο υπάρχουν λειτουργικά διαμορφωμένες θέσεις στάθμευσης, μία για κάθε διαμέρισμα με δύο σημεία εισόδου/εξόδου για αυτοκίνητα στους χώρους στάθμευσης της πολυκατοικίας.
Στην ταράτσα υπάρχουν αποθήκες, μία για κάθε διαμέρισμα.
Το κτίριο είναι ενεργειακής κλάσης Α
The project is being built on a prime plot in the Municipality of Strovolos. The area is considered privileged with easy access to the center or outside of Nicosia.
The three-storey building consists of eight (8) apartments. Four (4) of one (1) bedroom and four (4) of two (2) bedrooms.
In the shed there are functionally configured parking spaces, one for each apartment with two entry/exit points for cars in the parking lots of the apartment building.
On the roof there are storage rooms, one for each apartment.
The building is energy Class A








