Almost ready Modern three bedroom house for sale in Anthoupoli
For Sale / EUR 320.000 (VAT not included)
357 70007700
or
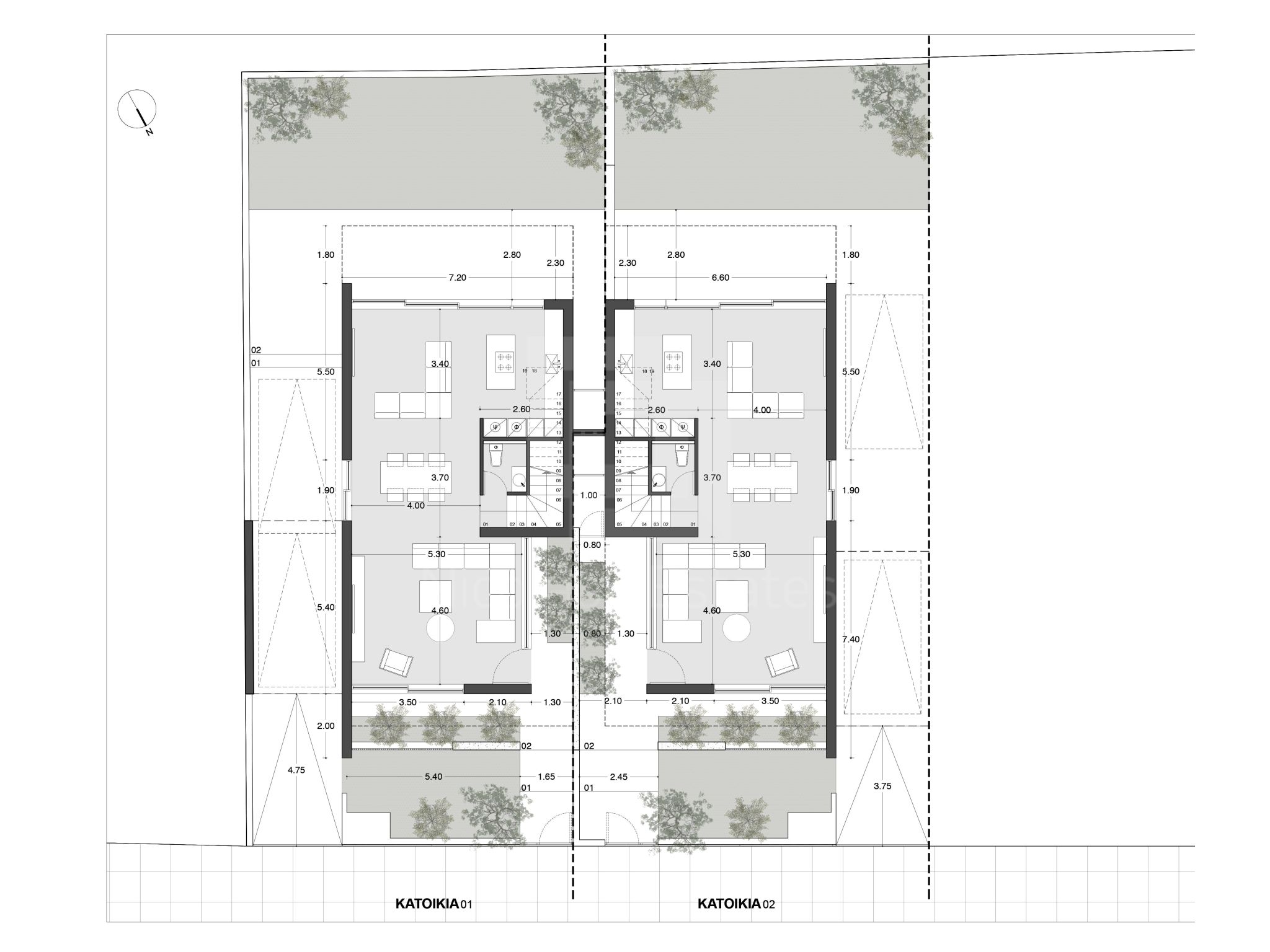
Το έργο αποτελείται από τέσσερις ανεξάρτητες διώροφες κατοικίες, οι οποίες ειναι σχεδον ετοιμοπαραδοτες στην Ανθούπολη κοντά στο SuperHome Λακατάμιας! Μονο δυο κατοικίες είναι διαθέσιμες.
Η κατοικία αποτελείται από το ισόγειο με άνετους χώρους όπως σαλόνι, τραπεζαρία κουζίνα με καθημερινό καθιστικό και βοηθητικές χρήσεις όπως αποχωρητήριο ξένων, καλυμμένη βεράντα, 1 καλυμμένο χώρο στάθμευσης, 1 ακάλυπτο χώρο στάθμευσης, αποθήκη, μηχανοστάσιο. Όλοι οι χώροι έχουν σχεδιαστεί με τρόπο ώστε να υπάρχει φυσικός φωτισμός, και θέα προς τους χώρους πρασίνου.
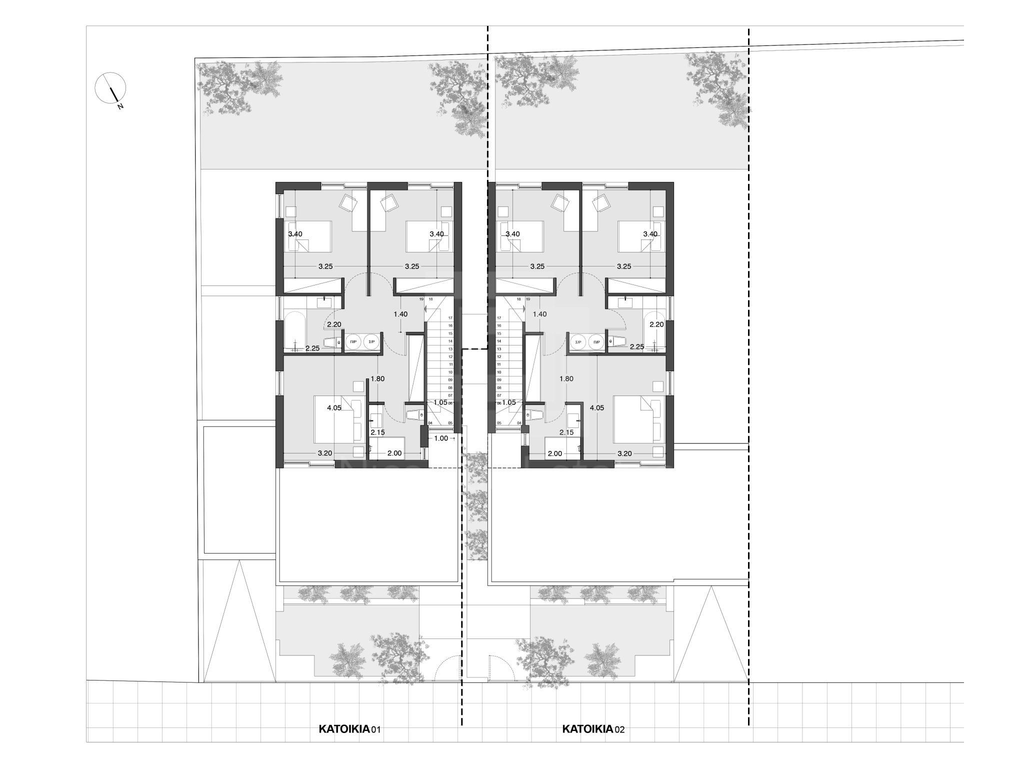
Ο 1ος όροφος αποτελείται από 3 υπνοδωμάτια με κοινό χώρο υγιεινής με μπανιέρα και κυρίως υπνοδωμάτιο με χώρο υγιεινής με ντουσιέρα.
ΧΑΡΑΚΤΗΡΙΣΤΙΚΑ ΑΚΙΝΗΤΟΥ:
- Πρόνοια για φωτοβολταϊκό σύστημα
- Πρόνοια για A/C
- Πρόνοια για κεντρική θέρμανση
- 2 parking (1 καλυμμένο και 1 ακάλυπτο)
- Αποθήκη
The project consists of four independent two-storey houses, almost ready for delivery in Anthoupoli near Superhome Lakatamias! Only 2 of them are still available.
The residence consists of the ground floor with comfortable spaces such as living room, dining room, kitchen with daily sitting area and auxiliary uses such as guest toilet, covered veranda, 1 covered parking space, 1 uncovered parking space, warehouse, engine room. All spaces are designed in such a way that there is natural lighting, and a view to the green areas.
The 1st floor consists of 3 bedrooms with a shared bathroom with a bathtub and a master bedroom with a bathroom with a shower.
PROPERTY FEATURES:
- Provision for photovoltaic system
- Provision for A/C
- Provision for central heating
- 2 parking (1 covered και 1 uncovered)
- Storage room















